Dusche vorhanden, Fliesen in Bad und Küche, Sammelheizung, KfZ - Stellplätze vorhanden
Karl-Marx-Str. 4
Ein sanierter Altbau mit 4 Wohnungen und 1 Gewerbeeinheit. Im Innenhof besteht die Möglichkeit zum Parken.
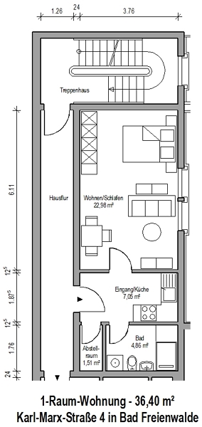
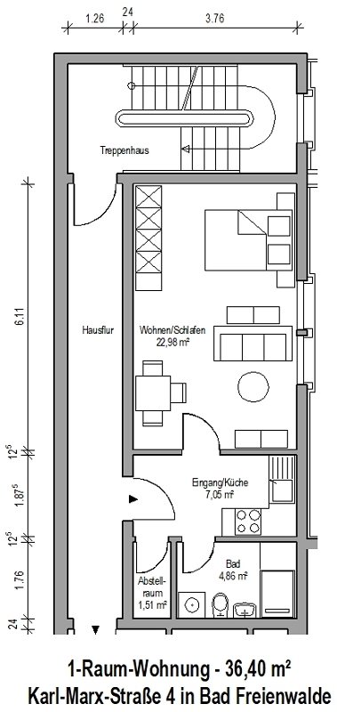
Die 1-Raum-Wohnung befindet sich im 1. OG. Sie ist ausgestattet mit einer innenliegenden gefliesten Dusche und einer Kochnische. In der gut geschnittenen Wohnung sind die Wände glatt gespachtelt, mit Vlies tapeziert und weiß gestrichen. Des Weiteren wurde ein Design-Vinyl-Belag in Holzbodenoptik verlegt. Die Wohnung verfügt über einen Abstellraum. Die Heizung ist zentral für das Haus ausgelegt.Der Mietbeginn richtet sich nach der Fertigstellung der Bauarbeiten, voraussichtlich ab Februar 2025.
Das Wohn- und Geschäftshaus befindet sich im Herzen der Stadt direkt am Marktplatz. Fußläufig sind in der Innenstadt Einkaufsmöglichkeiten sowie soziale Einrichtungen und Ärzte zu erreichen.
