Altbauwohnung, Fliesen in Bad und Küche, Sammelheizung, Badewanne vorhanden
Tornower Str. 6b
Das Wohnhaus wurde 2026 aufwendig saniert und verfügt über fünf 3-Raum und eine 4-Raumwohnung. Öffentliche Parkmöglichkeiten in ausreichender Anzahl befinden sich auf der gegenüberliegenden Straßenseite.
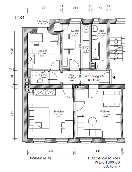
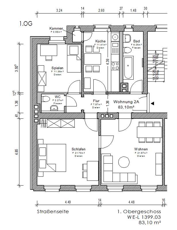
Bei dieser 3-Zimmerwohnung handelt es sich um einen Erstbezug nach Sanierung. Sie befindet sich im 1. Obergeschoss und verfügt über ein Fenster im hellgefliesten Bad mit Badewanne sowie eine Fußbodenheizung. In den Räumen der gut geschnittenen Wohnung sind die Wände glatt gespachtelt, mit Vlies tapeziert und weiß gestrichen. Als Bodenbelag sind aufgearbeitete Holzdielen vorhanden. In der Küche befindet sich eine kleine Kammer, die man als Stau- und Lagerraum nutzen kann.
Das Wohnhausbefindet sich im Zentrum der Stadt am großen Tornower Parkplatz. Einkaufsmöglichkeiten, soziale Einrichtungen sowie Ärzte sind fußläufig zu erreichen.
