Altbauwohnung, Balkon vorhanden, Dusche vorhanden, Fliesen in Bad und Küche, Sammelheizung
Tornower Str. 6b
Das Wohnhaus wurde saniert und verfügt über 3- und eine 4-Raumwohnungen teilweise mit Balkon. Öffentliche Parkmöglichkeiten befinden sich auf der gegenüberliegenden Straßenseite.
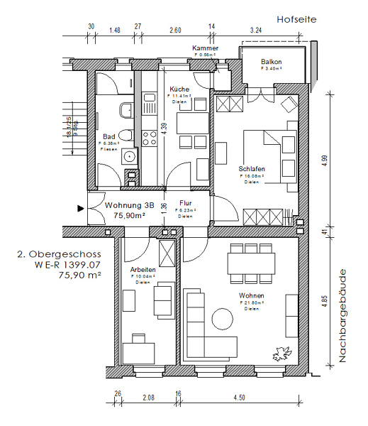
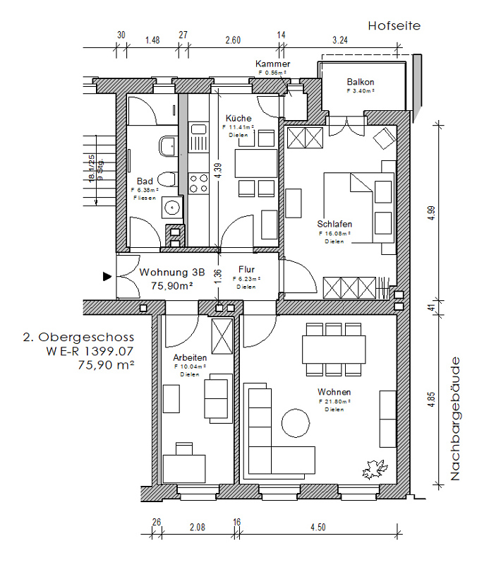
Bei dieser 3-Zimmerwohnung handelt es sich um einen Erstbezug nach Sanierung. Sie befindet sich im 2. Obergeschoss und verfügt über ein Fenster im hellgefliesten Bad mit Dusche sowie eine Fußbodenheizung. In den Räumen der gut geschnittenen Wohnung sind die Wände glatt gespachtelt, mit Vlies tapeziert und weiß gestrichen. Als Bodenbelag sind Holzdielen vorhanden. In der Küche befindet sich eine kleine Kammer, die man als Stau- und Lagerraum nutzen kann. Die Wohnung verfügt über einen Balkon, Keller und ein hofseitigen Sonnenschutz.
Das Wohnhaus liegt zentral am großen Tornower Parkplatz. Einkaufsmöglichkeiten, soziale Einrichtungen sowie Ärzte sind fußläufig zu erreichen.
